
NEW!!
5.1.26 更新
新築工事
現場を実際にご覧いただき、安心してお任せいただけるよう施工現場を見学していただいております。
是非ともお気軽にご相談下さいませ。
![]()
NEW!!
6.3.9
「京都LIFE」掲載
![]()
上記の取扱いメーカーロゴ・商品名は、各社の商標・登録商標になります。
![]()


![]()
岩倉長谷町
間取り 土地
価格 6,120万円
![]()
岩倉長谷町
間取り 土地
価格 3,160万円
![]()
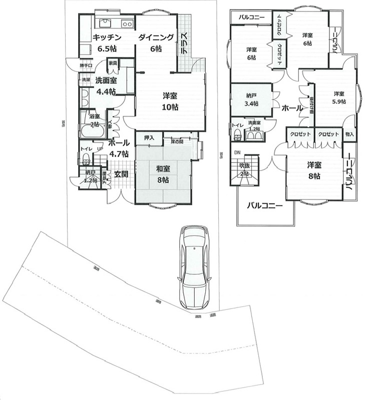
岩倉長谷町
間取り 4LDK
価格 5,860万円
![]()
岩倉長谷町
間取り 3LDK
価格 3,980万円
![]()
岩倉長谷町
間取り 土地
価格 2,100万円
![]()
朝日プラザ高瀬川 105号室
間取り 1R
価格 720万円
所在地・交通状況
京都市下京区木屋町通 上ノ口下る梅湊町95番地
京阪本線「五条駅」徒歩7分
地下鉄「五条駅」徒歩12分
京都市バス「河原町正面停」徒歩2分
![]()
おすすめポイント・備考
収益マンション 予想表面利回り9.2%
![]()
![]()
![]()
![]()
桂坂
間取り 4SLDK
価格 6,380万円
![]()
山科区 安朱桟敷町 New!!
間取り 6SLDK
価格 8,000万円
所在地・交通状況
京都市山科区安朱桟敷町18番地3
京阪京津線「京阪山科駅」徒歩3分
JR湖西線「山科駅」徒歩3分
地下鉄東西線「山科駅」徒歩3分
![]()
おすすめポイント・備考
◆注文建築住宅◆暮らしも通勤もストレスフリー
![]()

![]()
![]()
エル・パティオ西向日
間取り 2LDK
価格 2,550万円
![]()
京都の新築住宅建築・リフォーム・不動産は有限会社アクティブにお任せ下さい。
施工エリア:京都市北区,京都市左京区,京都市右京区,京都市上京区,京都市中京区,京都市下京区,京都市東山区,京都市山科区,京都市西京区,京都市南区,京都市伏見区,
京都府宇治市,長岡京市,向日市,京都府乙訓郡,滋賀県南部,大阪府北部中部,兵庫県東部,奈良県北部など その他の地域もご相談下さい。
HOME|設備・仕様・構造|オプション|住宅保証について|長期優良住宅|環境快適エコ住宅|施工中物件|施工実績(新築)|施工実績(リフォーム)|
ご依頼から完成まで|販売物件|賃貸物件|会社案内|お問い合わせ|個人情報の取り扱い|リンク集|サイトマップ|
有限会社アクティブ
〒602-0043 京都市上京区新町通り今出川上ル西入ル元本満寺町307-22
TEL:075-432-3300 FAX:075-432-3800
宅地建物取引業 京都府知事(6)10682・建設業許可(般-20)34817号